Nezapína ventilátor chladiča
-
charlie trenčan
- Nováček

- Příspěvky: 2
- Registrován: 04.06.2015 17:03
Nezapína ventilátor chladiča
Ventilátor chladiča u Ford Mondeo MK3 nezapína ani pri zapnutí klímy. Napájacie napätie do riadiacej jednotky je v poriadku ale riadiace napätie (tenký modrý káblik na vstupe RJ ventilátora) je veľmi nízke.
Niekde som čítal, že by malo byť minimálne 4,5V lebo ináč sa ventilátor ani nepohne.
Vie mi niekto poradiť v ktorom konektore nájdem druhý koniec tohto káblika aby som to mohol zmerať aj na druhom konci resp. aby som ho mohol nahradiť ak je niekde vo zväzku prerušený?
Dík za radu a pomoc.
Niekde som čítal, že by malo byť minimálne 4,5V lebo ináč sa ventilátor ani nepohne.
Vie mi niekto poradiť v ktorom konektore nájdem druhý koniec tohto káblika aby som to mohol zmerať aj na druhom konci resp. aby som ho mohol nahradiť ak je niekde vo zväzku prerušený?
Dík za radu a pomoc.
- Slid
- Pokročilý

- Příspěvky: 854
- Registrován: 27.07.2011 16:33
- Bydliště: Praha / Semily
- Kontaktovat uživatele:
Re: Nezapína ventilátor chladiča
Uhliky, rozdelat motorek vetraku a bude jasno.
Mondeo, 2.0 TDCi 85kW, combi, r.v. 12/2006, EURO 4 + DPF, Futura X, Webasto
-
krenda
- Test driver

- Příspěvky: 2668
- Registrován: 25.12.2011 16:56
- Bydliště: Novojičínsko
Re: Nezapína ventilátor chladiča
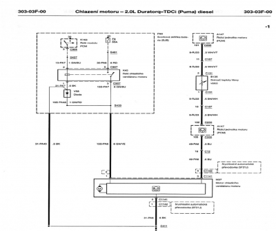
Nevím co máš za motorizaci, bylo by vhodné si vytvořit podpis(údaje o autě), který se bude objevovat pod každým příspěvkem. Vybral jsem schéma pro TDCI, nejběžnější motorizace asi.
je: Ford S-Max, 09/2020, 7míst, 2.0 ecoblue, 140kW, 4x4
bylo: Ford Focus, 09/2020, hatchback, 2.3 ecoboost, 228kW, ST
bylo: Ford Mondeo, 09/2013, kombi, 2.0 SCTi 202,3kW, Titanium S
bylo: Ford Focus, 09/2020, hatchback, 2.3 ecoboost, 228kW, ST
bylo: Ford Mondeo, 09/2013, kombi, 2.0 SCTi 202,3kW, Titanium S
- lucky.jack
- Test driver

- Příspěvky: 8473
- Registrován: 12.03.2011 21:18
- Bydliště: v Hradci Královým
Re: Nezapína ventilátor chladiča
Na některých modelech často odcházeli jednotky na větráku. Nedá se koupit samostatně, ale na netu je jich dost starsich po bazarech.
Focus III combi, 10/2011, 1.6 Ti-VCT 105 poníků
>Galerie< - Focus II combi 10/2007 Collection(mezifacelift), 1.6 TDCi 66 kW/214Nm - chip 81kW/245Nm
>Galerie< - Focus II combi 10/2007 Collection(mezifacelift), 1.6 TDCi 66 kW/214Nm - chip 81kW/245Nm
- Slid
- Pokročilý

- Příspěvky: 854
- Registrován: 27.07.2011 16:33
- Bydliště: Praha / Semily
- Kontaktovat uživatele:
Re: Nezapína ventilátor chladiča
Jednotka je pravda ze take muze odejit, ale vetsinou jsou to uhliky smeteny.
Vyndej ven saharu, rozpentluj motorek a pokud uvidis tohle


Oprava cca 150Kc za uhliky.
Jinak pokud byla jednotka KO, na vystupu neukazovala ani V.
Vyndej ven saharu, rozpentluj motorek a pokud uvidis tohle


Oprava cca 150Kc za uhliky.
Jinak pokud byla jednotka KO, na vystupu neukazovala ani V.
Mondeo, 2.0 TDCi 85kW, combi, r.v. 12/2006, EURO 4 + DPF, Futura X, Webasto
-
charlie trenčan
- Nováček

- Příspěvky: 2
- Registrován: 04.06.2015 17:03
Re: Nezapína ventilátor chladiča
Uhlíky to nebudú. Motor zapojený napriamo beží.
- Slid
- Pokročilý

- Příspěvky: 854
- Registrován: 27.07.2011 16:33
- Bydliště: Praha / Semily
- Kontaktovat uživatele:
Re: Nezapína ventilátor chladiča
Tak to bude opravdu vypadat na jednotku.
Mondeo, 2.0 TDCi 85kW, combi, r.v. 12/2006, EURO 4 + DPF, Futura X, Webasto
- galm
- Nováček

- Příspěvky: 8
- Registrován: 26.09.2011 13:41
Re: Nezapína ventilátor chladiča
Nám stejný problém. Nespíná se ventilátor chladiče při zapnuté klimatizaci.
Na přívodním konektoru k ventilátoru je 12V, pouze na modrém ovládacím vodiči je 0V a motor netočí.
Vzhledem k tomu, že přístup ke konektoru ECU PCM je dost špatný, tak jsem ještě nestačil prověřit kontinuitu ovládacího vodiče.
Schéma, které mám k dispozici, také není úplně platné pro můj vůz, např. konektor C12 vůbec není v bateriové pojistkové skříňce.
Proto by mě zajímalo, zda někdo zná hodnoty ovládacího napětí motoru ventilátoru pro nízké otáčky a pro vysoké otáčky nebo zda by byl někdo ochoten je změřit.
Na přívodním konektoru k ventilátoru je 12V, pouze na modrém ovládacím vodiči je 0V a motor netočí.
Vzhledem k tomu, že přístup ke konektoru ECU PCM je dost špatný, tak jsem ještě nestačil prověřit kontinuitu ovládacího vodiče.
Schéma, které mám k dispozici, také není úplně platné pro můj vůz, např. konektor C12 vůbec není v bateriové pojistkové skříňce.
Proto by mě zajímalo, zda někdo zná hodnoty ovládacího napětí motoru ventilátoru pro nízké otáčky a pro vysoké otáčky nebo zda by byl někdo ochoten je změřit.
Ford Mondeo Kombi - Futura X, 2006, 2.0 TDCi 85kW, E4 - HJBE, DENSO
- ZaQik
- Admin

- Příspěvky: 25184
- Registrován: 30.05.2010 17:33
- Bydliště: exit 82 na D0
Re: Nezapína ventilátor chladiča
nezbyva Ti nez zmerit drat, protoze rizeni otacek neni dano napetim, ale tvarem jeho prubehu
Ford Focus mk3 combi 1.6 Ti-VCT, r.v.2018 + Ford Fiesta mk7 3D 1.25, r.v.2014
byl Ford Focus mk2 combi 1.6, r.v.2009 + Ford Fiesta mk6 1.4 TDCi r.v. 2004
Nejsem poradna, encyklopedie ani hotline spolecnosti Ford - ptejte se na foru, od toho je.
byl Ford Focus mk2 combi 1.6, r.v.2009 + Ford Fiesta mk6 1.4 TDCi r.v. 2004
Nejsem poradna, encyklopedie ani hotline spolecnosti Ford - ptejte se na foru, od toho je.
- galm
- Nováček

- Příspěvky: 8
- Registrován: 26.09.2011 13:41
Re: Nezapína ventilátor chladiča
Tak jsem v koncích, ventilátor stále neběží.
Na konektoru je přítomno 12V napájecích a na řídícím vodiči je PWM signál o frekvenci 150Hz s poměrem zapnuto(12V)/vypnuto(0V) - 1/5 - cca. 1,13ms (zap-12V) / 5,53ms (vyp-0V).
Nechal jsem doplnit klimatizaci, z vrakoviště jsem pořídil jinou saharu, ta se taky neroztočila. Tak jsem ji vyměnil za jinou, opět bez úspěchu. Nakonec jsem si zapůjčil úplně novou a taky nic.
Z toho mi vychází, že problém není v žádném dílu sahary ani ve výstupu ECU motoru, ale v regulaci.
Diagnostikou, kterou mám k dispozici jsem ověřil, že snímané teploty chladící kapaliny, nasávaného vzduchu a venkovní teplota odpovídá realitě.
Jsou pro spuštění a regulaci ventilátoru potřeba hodnoty z jiných čidel?
Pokud ano, kde jsou?
Lze originální FORD diagnostikou přímo ovládat ventilátor, resp. výstup PWM pro ventilátor?
Na konektoru je přítomno 12V napájecích a na řídícím vodiči je PWM signál o frekvenci 150Hz s poměrem zapnuto(12V)/vypnuto(0V) - 1/5 - cca. 1,13ms (zap-12V) / 5,53ms (vyp-0V).
Nechal jsem doplnit klimatizaci, z vrakoviště jsem pořídil jinou saharu, ta se taky neroztočila. Tak jsem ji vyměnil za jinou, opět bez úspěchu. Nakonec jsem si zapůjčil úplně novou a taky nic.
Z toho mi vychází, že problém není v žádném dílu sahary ani ve výstupu ECU motoru, ale v regulaci.
Diagnostikou, kterou mám k dispozici jsem ověřil, že snímané teploty chladící kapaliny, nasávaného vzduchu a venkovní teplota odpovídá realitě.
Jsou pro spuštění a regulaci ventilátoru potřeba hodnoty z jiných čidel?
Pokud ano, kde jsou?
Lze originální FORD diagnostikou přímo ovládat ventilátor, resp. výstup PWM pro ventilátor?
Ford Mondeo Kombi - Futura X, 2006, 2.0 TDCi 85kW, E4 - HJBE, DENSO
- ZaQik
- Admin

- Příspěvky: 25184
- Registrován: 30.05.2010 17:33
- Bydliště: exit 82 na D0
Re: Nezapína ventilátor chladiča
neznam mk3, ale mk4 ma v motorove pojistkovnici rele pro sepnuti spojky klimy - v rele se da namerit, jestli jednotka ukostruje kvuli sepnuti a jestli tam je napeti pro napajeni spojky
Ford Focus mk3 combi 1.6 Ti-VCT, r.v.2018 + Ford Fiesta mk7 3D 1.25, r.v.2014
byl Ford Focus mk2 combi 1.6, r.v.2009 + Ford Fiesta mk6 1.4 TDCi r.v. 2004
Nejsem poradna, encyklopedie ani hotline spolecnosti Ford - ptejte se na foru, od toho je.
byl Ford Focus mk2 combi 1.6, r.v.2009 + Ford Fiesta mk6 1.4 TDCi r.v. 2004
Nejsem poradna, encyklopedie ani hotline spolecnosti Ford - ptejte se na foru, od toho je.
- galm
- Nováček

- Příspěvky: 8
- Registrován: 26.09.2011 13:41
Re: Nezapína ventilátor chladiča
Díky za tip, ale spojka kompresoru klimatizace spíná bez problémů.
Navštívil jsem servis FORD.
Technik mi řekl, že se pomocí diagnostiky nedá ventilátor ovládat.
Začal v autě štrachat, zjistil že napájení je přítomno, ovládací signál je přítomen, ovládací vodič vede neporušený od ventilátoru na pin 105 v ECU.
Po dvou hodinách přiběhl, že se ventilátor rozeběhl, ale neví proč. Pak začal strojit auto do původního stavu a ventilátor se znovu už nerozeběhnul. Poradil mi ať natáhnu novou kabeláž k ventilátoru, to jsem udělal, ale bez úspěchu.
Fakt už nevím co s tím je.
Asi připojím ventilátor natvrdo přes relé a budu si jej zapínat manuálně.
Navštívil jsem servis FORD.
Technik mi řekl, že se pomocí diagnostiky nedá ventilátor ovládat.
Začal v autě štrachat, zjistil že napájení je přítomno, ovládací signál je přítomen, ovládací vodič vede neporušený od ventilátoru na pin 105 v ECU.
Po dvou hodinách přiběhl, že se ventilátor rozeběhl, ale neví proč. Pak začal strojit auto do původního stavu a ventilátor se znovu už nerozeběhnul. Poradil mi ať natáhnu novou kabeláž k ventilátoru, to jsem udělal, ale bez úspěchu.
Fakt už nevím co s tím je.
Asi připojím ventilátor natvrdo přes relé a budu si jej zapínat manuálně.
Ford Mondeo Kombi - Futura X, 2006, 2.0 TDCi 85kW, E4 - HJBE, DENSO
Kdo je online
Uživatelé prohlížející si toto fórum: Žádní registrovaní uživatelé a 1 host

