Svetelny senzor a svetla denneho svietenia
- ZaQik
- Admin

- Příspěvky: 25014
- Registrován: 30.05.2010 17:33
- Bydliště: exit 82 na D0
Re: Svetelny senzor a svetla denneho svietenia
uvazujes spravne ... rele Ti za 100,- sezenu original
Ford Focus mk3 combi 1.6 Ti-VCT, r.v.2018 + Ford Fiesta mk7 3D 1.25, r.v.2014
byl Ford Focus mk2 combi 1.6, r.v.2009 + Ford Fiesta mk6 1.4 TDCi r.v. 2004
Nejsem poradna, encyklopedie ani hotline spolecnosti Ford - ptejte se na foru, od toho je.
byl Ford Focus mk2 combi 1.6, r.v.2009 + Ford Fiesta mk6 1.4 TDCi r.v. 2004
Nejsem poradna, encyklopedie ani hotline spolecnosti Ford - ptejte se na foru, od toho je.
- Mufin01
- Test driver

- Příspěvky: 3959
- Registrován: 04.10.2010 15:32
- Bydliště: štatl jak sviňa
Re: Svetelny senzor a svetla denneho svietenia
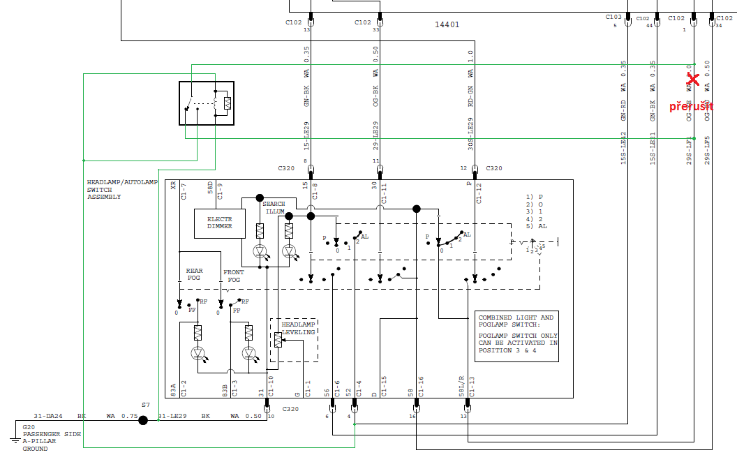
Mám stejný GEM (poj. skříň), teda aspoň podle rozmístění komponent, ale číslování pojistek mám jiné, kde jsi ten obrázek vzal? Nebo je to snad u 1,6TDCi jinak? viz můj popis v galerce
http://www.ford-focus.cz/forum/viewtopi ... 61#p787361
http://www.ford-focus.cz/forum/viewtopi ... 61#p787361
-
user11
- Nováček

- Příspěvky: 24
- Registrován: 28.05.2011 12:25
Re: Svetelny senzor a svetla denneho svietenia
Zaqik:takze by to teoreticky melo jit
to by bylo fajn - asi nejsi nekde z okoli Plzne ? - protoze fakt se mi nechce davat 800 za jedno obycejny "spinaci" relatko
- me prave zarazilo ze to vetsinou vsichni maj az po FL a ja FL nemam a je to tam
edit: jeste jsem zapomnel napsat ze prepinac na AUTO samozrejme mam
(a funguje dobre ale pouze ve tme
)
Mufin01: to schema je z Vividu - podle motoru - ale jinak ve skutecnosti mam naprosto stejnou jako ty na obrazku (asi jine cislovani v tom programu)
- me prave zarazilo ze to vetsinou vsichni maj az po FL a ja FL nemam a je to tam
edit: jeste jsem zapomnel napsat ze prepinac na AUTO samozrejme mam
Mufin01: to schema je z Vividu - podle motoru - ale jinak ve skutecnosti mam naprosto stejnou jako ty na obrazku (asi jine cislovani v tom programu)
Ford Focus II 1,6TDCI Titanium 80kW, 2005
Ford Mondeo 2009 2.0TDCI 103kW Titanium
Ford Mondeo 2009 2.0TDCI 103kW Titanium
-
h4rr0d
- .

- Příspěvky: 418
- Registrován: 16.07.2012 13:50
- Bydliště: Brno
Re: Svetelny senzor a svetla denneho svietenia
Diky ZaQikovi za rele.
Za 150 korun (rele + posta + sada pojistek) nemusim myslet na zapinani svetel
Za 150 korun (rele + posta + sada pojistek) nemusim myslet na zapinani svetel
2010 Focus ST 5d
-
pulmilos
- Nováček

- Příspěvky: 9
- Registrován: 26.05.2013 10:19
Re: Svetelny senzor a svetla denneho svietenia
prosím o rychlou pomoc - prodal jsem staré auto a nechal si světla denního svícení s třemi dráty (bílý, žlutý a černý). Kam nejjednodušeji připojit drátky, aby vše fungovalo a nemusel se dělat velký zásah do elektro? Za jakoukoliv odpověď zde nebo přes SZ budu rád. Mám FoFo II. facelift bez polohy auto na otáčivém spínači světel. Díky
Ford Focus II facelift combi 2.0 TDci 100 kW
- viduka55
- Zkušený

- Příspěvky: 1984
- Registrován: 17.03.2013 13:38
- Bydliště: Plzeň
Re: Svetelny senzor a svetla denneho svietenia
Cerny je kostra, bílý by mělo být plus obrysových světel a žlutý je plus po zapnutí klíčku, většinou se dáva na čidlo zpátečky
“If everything seems under control, you're not going fast enough.”
Viduka55 - Ford Focus II Duratec HE 2.0, r.v. 2006, 107 KW, GHIA - Galerie

Viduka55 - Ford Focus II Duratec HE 2.0, r.v. 2006, 107 KW, GHIA - Galerie
-
pulmilos
- Nováček

- Příspěvky: 9
- Registrován: 26.05.2013 10:19
Re: Svetelny senzor a svetla denneho svietenia
Díky, spíše bych ale potřeboval vědět jak se co nejjednodušeji dostanu k těm drátům a asi hlavně i jakou mají barvu. Moc by mi to ulehčilo práci.viduka55 píše:Cerny je kostra, bílý by mělo být plus obrysových světel a žlutý je plus po zapnutí klíčku, většinou se dáva na čidlo zpátečky
Ford Focus II facelift combi 2.0 TDci 100 kW
-
Crashdown
- Nováček

- Příspěvky: 25
- Registrován: 11.08.2013 00:48
Re: Svetelny senzor a svetla denneho svietenia
Pro relé se stačí stavit skoro do každýho vrakáče, nemusí to být jen pro fordy a za 50 korun ti ho prodají... Stačí nějaký obyčejný spínácí relé které tam pasuje, já je vyzkoušel rovnou na místě místo relé klaksonu, fungovalo, tak jsem ho tam nechal a to z houkačky jsem dal na denní svícení... výškově se možná budou trochu lišit, ale to jsem neřešil...
Horší je to s pojistkama, takové ty velké, za ty chtějí ve fordu jmění, třeba 200 kč za kus a na vrakáči je skoro nemají, možná v nějakém forďáckém...
Horší je to s pojistkama, takové ty velké, za ty chtějí ve fordu jmění, třeba 200 kč za kus a na vrakáči je skoro nemají, možná v nějakém forďáckém...
Sedan Ford Focus 2005 II Ghia 2,0 107 kW, šedá met.
- enjoy
- Test driver

- Příspěvky: 5325
- Registrován: 05.02.2013 18:38
- Bydliště: Praha
Re: Svetelny senzor a svetla denneho svietenia
Možná lepší, než chodit na vrakáč, koupit ho za 40 korun v autodílech.
Ford Mondeo MK4 Kombi 2008, 2.0i
Ford Ranger, 2008, 2.5 TDCi
Ford Ranger, 2008, 2.5 TDCi
-
Crashdown
- Nováček

- Příspěvky: 25
- Registrován: 11.08.2013 00:48
Re: Svetelny senzor a svetla denneho svietenia
Treba v autokelly me ho nabizeli za 600 takove rele 
Sedan Ford Focus 2005 II Ghia 2,0 107 kW, šedá met.
- obov
- Nováček

- Příspěvky: 11
- Registrován: 24.10.2013 12:37
- Bydliště: Praha
Re: Svetelny senzor a svetla denneho svietenia
Autokelly za 58 kaček......
Naposledy upravil(a) obov dne 12.11.2013 19:16, celkem upraveno 5 x.
Ford Focus II 1.8 , 92kW Duratec ,Titanium ,12/2006
-
stano.
- Člen klubu

- Příspěvky: 13648
- Registrován: 18.07.2011 19:55
Re: Svetelny senzor a svetla denneho svietenia
K plnej spokojnosti funguju aj zo starej fiesty, ktora isla na likvidaciu.
- jirkaj
- Člen klubu

- Příspěvky: 878
- Registrován: 28.04.2013 20:47
- Bydliště: Vsetín
Re: Svetelny senzor a svetla denneho svietenia
Pomocí jednoho relé je možné upravit automatické svícení (poloha AUTO) tak, že vyhovuje naší vyhlášce.
Předpokládá se osazení relé DTRL R15, pojistka F135 a DTRL rezistor - vše originál denní svícení Ford). (neosazovat F110 a F113)
Svícení vypadá takhle:
P - obrysová světla (stejné jako bez úpravy)
0 - nesvítí nic
1 - obrysová světla (stejné jako bez úpravy)
2 - potkávací světla + obrysové světla (stejné jako bez úpravy)
3 - AUTO
- za světla - snížená intenzita potkávacích světel + obrysové světla, zhaslé podsvícení tlačítek, displej PP a rádia svítí naplno
- za tmy - potkávací světla naplno + obrysová světla, svítí podsvícení tlačítek, ztlumené podsvícení displeje PP a rádia, taky svítí kontrolka na tachometru. možná je to elegantnější než přelepení senzoru světla
Předpokládá se osazení relé DTRL R15, pojistka F135 a DTRL rezistor - vše originál denní svícení Ford). (neosazovat F110 a F113)
Svícení vypadá takhle:
P - obrysová světla (stejné jako bez úpravy)
0 - nesvítí nic
1 - obrysová světla (stejné jako bez úpravy)
2 - potkávací světla + obrysové světla (stejné jako bez úpravy)
3 - AUTO
- za světla - snížená intenzita potkávacích světel + obrysové světla, zhaslé podsvícení tlačítek, displej PP a rádia svítí naplno
- za tmy - potkávací světla naplno + obrysová světla, svítí podsvícení tlačítek, ztlumené podsvícení displeje PP a rádia, taky svítí kontrolka na tachometru. možná je to elegantnější než přelepení senzoru světla
- Adow
- Člen klubu

- Příspěvky: 6809
- Registrován: 20.05.2011 09:52
- Bydliště: Kousek od Brna
Re: Svetelny senzor a svetla denneho svietenia
No např. já jsem neměl patici pro relé R15, takže izolačka to jistila docela elegantně. Teď už mám jiný GEM. A fakt je v pořádku, že s denním svícením mají svítit i obrysovky??
Je: Ford S-max II, 2.0 TDCi
Je: Ford B-max, 1.0 EB
Je: BMW i3, BEV 125 kW
Byl: Ford S-max I, 1.8 TDCi
Byl: Ford Focus III Combi FL, 1.5 EB
Byl: Ford Focus II Combi FL, 1.6i
Je: Ford B-max, 1.0 EB
Je: BMW i3, BEV 125 kW
Byl: Ford S-max I, 1.8 TDCi
Byl: Ford Focus III Combi FL, 1.5 EB
Byl: Ford Focus II Combi FL, 1.6i
- Blackhawk
- Test driver

- Příspěvky: 3861
- Registrován: 24.07.2009 15:02
- Bydliště: Sereď
Re: Svetelny senzor a svetla denneho svietenia
Nie. Parkovacky by pri dennom svieteni svietit nemali.
Kdo je online
Uživatelé prohlížející si toto fórum: Žádní registrovaní uživatelé a 0 hostů

